Unleash Potential: Brand New Retail Haven with Skylights

  • $16,500/Per Month
332 Atlantic Avenue, Brooklyn, NY 11201
Featured For Rent Available Now!
332 Atlantic Avenue, Brooklyn, NY 11201
  • $16,500/Per Month

Overview

Property ID: CREP20119
  • Commercial Space
  • Property Type
  • 1
  • Bathroom
  • 3013
  • sqft

Description

Location: 332 Atlantic Ave.

Monthly Rate: $16,500

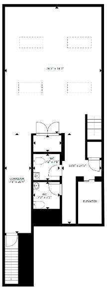
Embark on a journey of endless possibilities with this pristine retail gem. Nestled at 332 Atlantic Ave., this space stands as a beacon of innovation, offering an expansive vanilla box awaiting your creative touch. The soaring 18+ ft ceilings provide an atmosphere of grandeur, amplified by 4 magnificent skylights that flood the space with natural light.

Space Breakdown:

  • Ground Floor: 1243 sqft with 13 ft ceilings for an intimate and engaging shopping environment.
  • Lower Level: 1770 sqft with a ceiling height of 18 to 20 ft, creating a dramatic ambiance.

Features That Set the Stage:

  • Blank Canvas Brilliance: A brand new vanilla box space gives you the freedom to mold your vision without limits.
  • Celestial Ambiance: Bask in the glow of 4 stunning skylights that bathe the space in natural radiance.
  • Elevated Elegance: The new façade exudes modernity, drawing attention and foot traffic to your venture.
  • Vertical Mobility: Elevator access ensures convenience for customers and effortless movement between levels.
  • Climate Control: HVAC system guarantees a comfortable environment year-round.

Designed for Excellence: This space is the ultimate canvas for crafting a remarkable retail experience. Whether you envision a flagship store, an immersive showroom, or an upscale boutique, this space caters to your aspirations.

Seize the Moment: At a competitive rate of $16,500 per month, this offering opens doors to unparalleled value and potential returns. Don’t miss your chance to transform 332 Atlantic Ave. into a retail masterpiece that leaves an indelible mark on the landscape.

Connect with us now to step into a new era of retail excellence!

 

Listing provided by J3K Real Estate.

  • Address 332 Atlantic Avenue, Brooklyn, NY 11201

Details

Updated on August 3, 2023 at 6:31 pm
  • Property ID: CREP20119
  • Price: $16,500/Per Month
  • Property Size: 3013 sqft
  • Bathroom: 1
  • Property Type: Commercial Space
  • Property Status: For Rent

Mortgage Calculator

Monthly
  • Principal & Interest
  • Property Tax
  • Home Insurance
  • PMI
$
$
%
$
$
$

Schedule a Tour

Your information

What's Nearby?

Please supply your API key Click Here

Contact Information

View Listings

Enquire About This Property

0 Review

Sort by:
Leave a Review

Leave a Review

Compare listings

Compare
cbi
  • cbi